免费注册
查看:2968 回复:0
发条木耳朵

OSD Audio打造简约、淡雅的7.1全景声影院

[复制链接]
楼主

基本信息简介

实施方类别:影音设计师
案例类别:定制影院
位置及周边概括性的描述:项目地处佛山大沥广佛新世界凯景湾高档别墅住宅区
资金投入:14万元
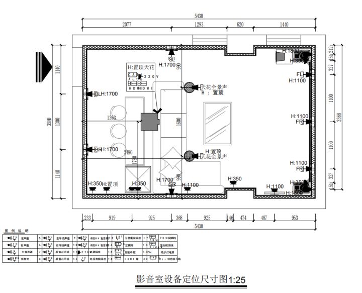
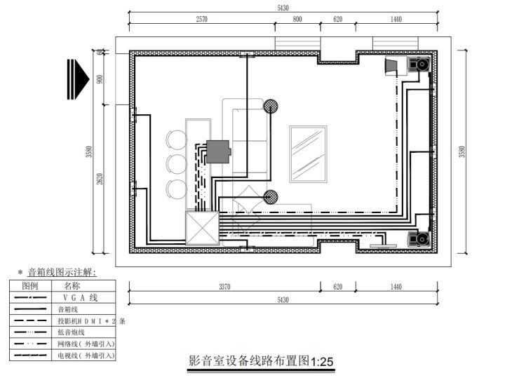
空间信息:长5.43m×宽3.58m,面积19.4㎡

用户使用需求:业主系成熟稳重的60后,要求是既能唱歌又能看电影,要用国际大品牌,最好有一些简易的灯带作装饰,但不要花里胡哨。

设计师:李智达
工程监理:陈国豪
设计公司:佛山赛宾荟科技有限公司

器材列表

OSD入墙式7.1全景声影院配置

主音箱:OSD T82×1对
中置音箱:OSD T82×1
环绕音箱:OSD T61×4
低音炮:DANNO B-120P
AV功放:DENON(天龙)X2400H
投影机:EPSON(爱普生)TZ2100
投影幕:SWEIN 120英寸画框幕

卡拉OK欢唱系统

主音箱:MASU TM-12 KTV×2
低音炮:MASU UKS-12 KTV
后级功放:MASU MA-12
前级效果器:GUTIN KT-520
点歌机:视易6T全高清点歌机、视易触摸屏22英寸

声学装修设计

木工工程设计(天花、墙体、地脚等)
电工类(弱电、强电、灯具设计)
其它工程(防水、防潮、防白蚁设计)
墙面声学处理设计
天花、灯带设计

影院过程,声学/光学处理、智能应用及特别设计

此别墅项目从空间整体设计、摆位,到墙体灯带、沙发颜色建议,都由设计团队亲自构建,影音室的简约风格和影音设备都令业主高度满意。该影音室选用OSD嵌墙式音箱,均按照3D沉浸音效Dolby Atmos,IMAX、DTS-X高标准专业化设计。OSD卓越的7.1环绕声系统,令整体音响效果更加逼真。

针对空间特点,设计师选用OSD音箱。它可呈现清晰干净的对白以及富有震撼感的低频,声音表现干净利落,没有拖泥带水之感。无论是寂静场景还是旋风画面,都能营造出清晰、饱满、细致而有深度的音效。

影像方面,使用爱普生投影机搭配120英寸的4K高清增益透声幕,影像栩栩如生,画面表现通透自然。KTV器材使用了MASU,其声色特点为高音甜、中音准、低音劲,可让演唱轻松自如,增加演唱自信和爱好。从主观评价上来说就是耐听,站在任何位置,都能欣赏到真实的歌声。

该项目属于中小型影院,有着自身的声学设计难点。为了避免小空间容易引起的驻波,震颤回声、声染色等缺陷(声音某些频率成分被大大加强,从而导致原有音色的失真或产生染色效应),设计师在室内声学设计阶段对设计方案和材料选择进行了有意识的调整,主要合理布置室内不同吸声特性的装修材料。

吸音材料的处理,采用在空间内部增加扩散体的做法,利用对墙面的改造,使房间减震模式均匀分布从而实现平滑的低频响应,改善室内声场。其次是考虑到影音室的隔音问题,对空间围护墙体和楼板等进行隔声设计,以保证房间有较低背景噪声的基本设置。隔音处理的另外一个目的,就是防止室内的声音对外界的影响。最后在音箱处理上,参照录音室的高标准,让其实现嵌入式处理,与墙面形成一个平面。
业主体验过后非常满意,他表示自己仿佛置身于影片的故事情节之中,人物对比、背景音乐等声音十分鲜活,在三维空间里营造出的真实感,使他有了更沉浸的观影体验。

设计与调试者心得

家庭影院的设计与布局,涉及到了很多专业知识,不单是声学层面,还有设计层面、装修知识以及对材料的掌握等。针对消费者需求和城市变化,设计团队也逐渐从大空间目光转移到中小型空间的设计上。因为这样能够更加接地气,同时也让私人影院能进入到千家万户当中。

整体风格与效果

根据业主的设计要求,多功能影音室的风格做到了简约、淡雅,没有过分华丽的表面装饰效果,却带给人一种舒服、自然之感。然而,装修只是外观上的美感,影院真正需要的始终是内涵,专业的声场设计和器材调试/定位,才是私人影院灵魂所在。
登录后才能回复

快速回复